项目名称:新郑市城关乡官刘庄郑许高速安置区配套基础设施(便民服务中心)项目
项目位置:城关乡官刘庄村南侧
建设单位:新郑市城关乡人民政府
项目性质:新建
用地面积:约1529.68平方米
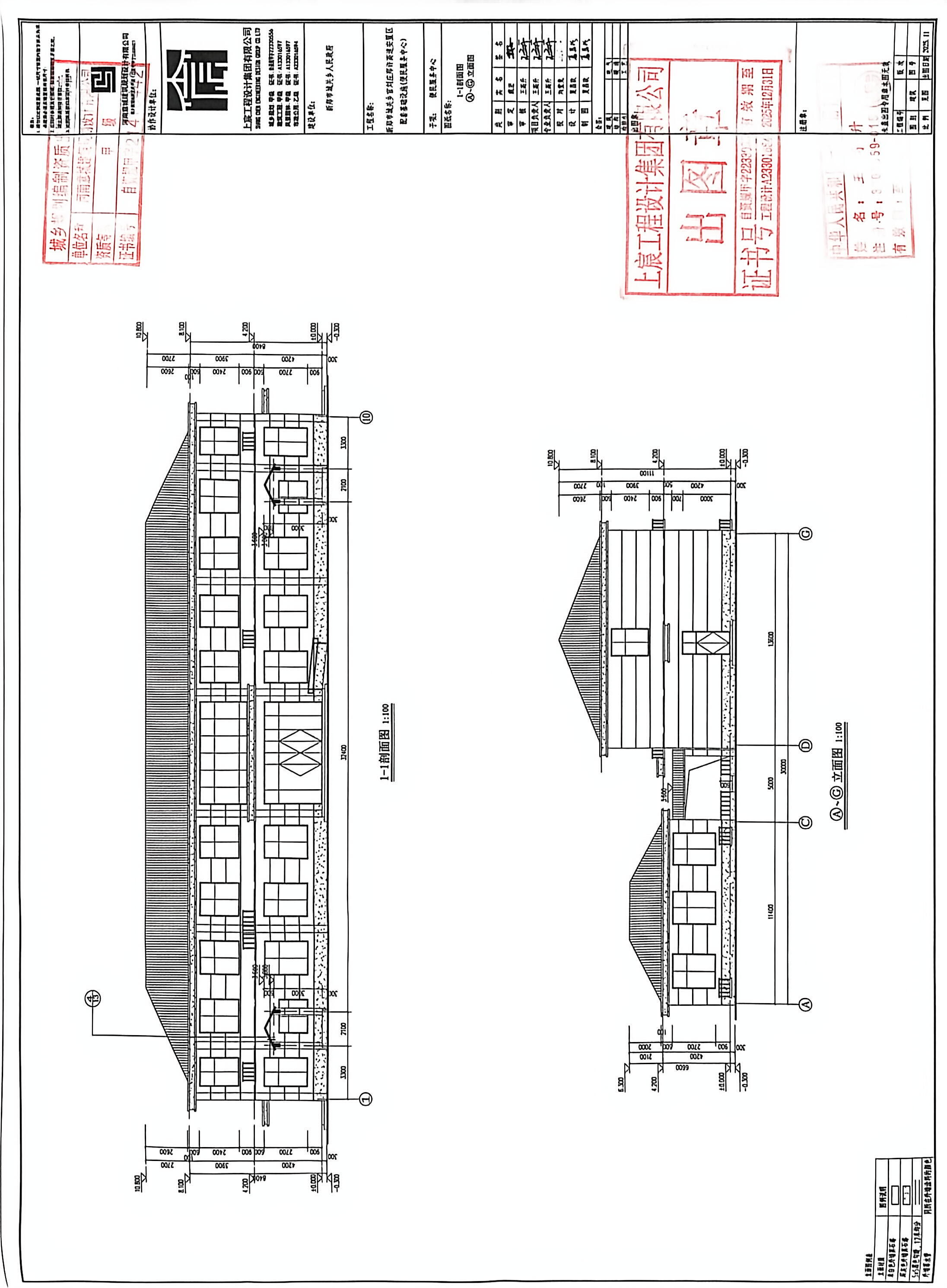
公示内容:官刘庄村重点地块管控图、官刘庄村庄用地规划图、便民服务中心宗地图、项目总平面图、便民服务中心效果图、平面立面图。
公示依据:依据《中华人民共和国城乡规划法》、《中华人民共和国行政许可法》、《河南城市规划公示制度》、《郑州市城市规划公示办法》等有关法律法规,特此公示,
公示期为5个工作日,自2025年11月24日--2025年11月28日。







豫公网安备 41010202002520号